Каркасный двухэтажный дом 84 м2

Каркасный двухэтажный дом 84 м2
АКТУАЛЬНУЮ ЦЕНУ УЗНАВАЙТЕ У МЕНЕДЖЕРА

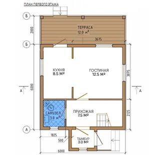
Двухэтажный каркасный дом: S=84 м²

 

Первый этаж: S=36+12 м²

- Высота потолков - 2,5 м;

- Гостиная - 12,5 м²;

- Кухня – 8,5 м²;

- с/у – 3,0 м²;

- Терраса – 12 м²;

- Крыльцо – 3,0 м²;

- Высота в коньке – 7,4 м;


Второй этаж: S=36 м²

- Высота потолков - 2,5 м;

- Спальня – 10 м²;

- Спальня детская – 10 м²;

- Холл – 3,0 м²;

- Гардероб – 3 м;


Строительство домов под ключ в Иркутске, Ангарске и Усолье-Сибирском. Можем разработать индивидуальный проект по вашему чертежу и предпочтениям и рассчитать стоимость.


В данном проекте представлен двухэтажный каркасный дом площадью 84 м2, имеется просторная гостиная, терраса 12 м2, две спальни на втором этаже. Можно внести правки в данный проект и пересчитать стоимость.


Строительство каркасного дома по этому проекту займет около 51 дня, сроки возведения зависят от конечной комплектации по проекту.

Двухэтажный каркасный дом: S=84 м²

 

Первый этаж: S=36+12 м²

- Высота потолков - 2,5 м;

- Гостиная - 12,5 м²;

- Кухня – 8,5 м²;

- с/у – 3,0 м²;

- Терраса – 12 м²;

- Крыльцо – 3,0 м²;

- Высота в коньке – 7,4 м;


Второй этаж: S=36 м²

- Высота потолков - 2,5 м;

- Спальня – 10 м²;

- Спальня детская – 10 м²;

- Холл – 3,0 м²;

- Гардероб – 3 м;


Строительство домов под ключ в Иркутске, Ангарске и Усолье-Сибирском. Можем разработать индивидуальный проект по вашему чертежу и предпочтениям и рассчитать стоимость.


В данном проекте представлен двухэтажный каркасный дом площадью 84 м2, имеется просторная гостиная, терраса 12 м2, две спальни на втором этаже. Можно внести правки в данный проект и пересчитать стоимость.


Строительство каркасного дома по этому проекту займет около 51 дня, сроки возведения зависят от конечной комплектации по проекту.