Каркасный дом 4х8,5 м

Каркасный дом 4х8,5 м
АКТУАЛЬНУЮ ЦЕНУ УЗНАВАЙТЕ У МЕНЕДЖЕРА

Каркасный дом 4Х8,5 М

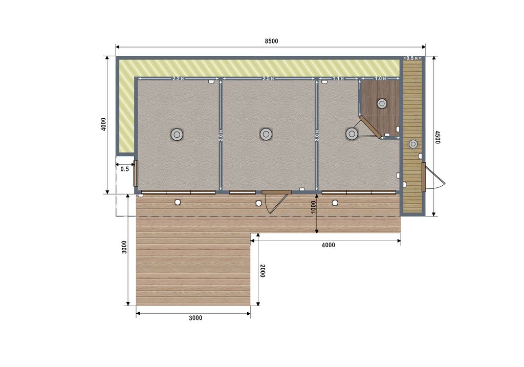
Чистый размер дома внутри - 3,5 х 7 м.  Дом собран из трех модулей в цехе и доставлен на участок. Отделочные работы проводятся на участке. Терраса выполнена из террасной доски. Внешняя отделка выполнена из лиственничной вагонки. На фасаде установлены наружные светильники.  Кровля установлена под небольшим скатом.

Каркасный дом 4Х8,5 М

Чистый размер дома внутри - 3,5 х 7 м.  Дом собран из трех модулей в цехе и доставлен на участок. Отделочные работы проводятся на участке. Терраса выполнена из террасной доски. Внешняя отделка выполнена из лиственничной вагонки. На фасаде установлены наружные светильники.  Кровля установлена под небольшим скатом.

Вам может быть интересно